貸マンション 広島市中区 上幟町 6階 1DK
| 賃料 | 7万円 | 管理費等 | なし | ||
|---|---|---|---|---|---|
| 敷金 / 保証金 | 2ヶ月/なし | 礼金 | 1ヶ月 | ||
| 交通 | 【バス】 縮景園入口 停歩1分 | ||||
| 所在地 | 広島県広島市中区上幟町 | ||||
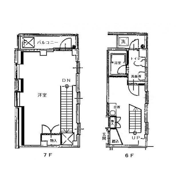
| 築年月 | 1991年4月(築34年8ヶ月) | 面積 | 43.32㎡ | 間取り | 1DK |
- バストイレ別
- 追い炊き機能
- 2階以上
- 駐車場(近隣含む)
- 洗濯機置き場
- フローリング
- エアコン
- ペット相談
- オートロック
- 南向き
物件詳細情報
| 交通 | 【バス】 縮景園入口 停歩1分 | ||
|---|---|---|---|
| その他交通 | 広島電鉄本線 / 胡町駅 徒歩9分 JR山陽本線(神戸~下関) / 広島駅 徒歩10分 |
||
| 所在地 | 広島県広島市中区上幟町 | ||
| 物件種目 | 貸マンション | ||
| 賃料 | 7万円 | 管理費等 | なし |
|---|---|---|---|
| 敷金 / 保証金 | 2ヶ月/なし | 礼金 | 1ヶ月 |
| 敷引 | - | 保証金償却 | - |
| その他一時金 | 更新事務手数料/2年:22,000円、 契約時鍵交換代:16,500円 | 保険等 | 加入要 |
| 維持費等 | - | ||
| 建物名・部屋番号 | - | ||
|---|---|---|---|
| 設備 | システムキッチン バス・トイレ別室 クローゼット シューズボックス オートロック ガスコンロ付 エレベーター シャワー付洗面化粧台 洗濯機置場 給湯 フローリング 都市ガス エアコン バルコニー 光ファイバー BS端子 | ||
| 備考 |
賃貸保証等:加入要 全保連 ※初回総額家賃等の50%+年間保証委託料13,000円/年 望者に別途有料) |
||
| エネルギー消費性能 | - | 断熱性能 | - |
|---|---|---|---|
| 目安光熱費 | - |
| 間取り | 1DK | 主要採光面 | - |
|---|---|---|---|
| 専有面積 | 43.32㎡ | 階建/階 | 7階建/6階 |
| 築年月 | 1991年4月(築34年8ヶ月) | 建物構造 | RC |
| 総戸数 | - | ||
| 駐車場 | なし | バイク置き場 | - |
| 駐輪場 | - | ペット | - |
| 契約期間 | 2年 | 現況 | 空家 |
|---|---|---|---|
| 条件等 | - | 入居可能時期 | 即時 |
| 更新料 | - | ||
| 物件番号 | 1032192445 | ||
| 情報公開日 | 2025/10/08 | 次回更新予定日 | 2025/11/22 |
※「-」と表示されている項目については、情報提供会社にご確認ください。
情報提供会社
(株)愛住企画
- 交通:
- 広島電鉄白島線/白島 徒歩3分
- 住所:
- 広島県広島市中区東白島町9-3
- TEL:
- 082-502-8899
- FAX:
- 082-502-8915
- 所属団体など:
(公社)広島県宅地建物取引業協会会員 中国地区不動産公正取引協議会加盟 - 取引態様:
- 仲介
- 免許番号:
- 広島県知事免許(7)第8018号
- 間取図は、現況を優先させていただきます。
- 映像は物件の一部を撮影したものです。物件の契約にあたっての最終判断はご自身の判断に基づいて行ってください。
-
仲介手数料について
仲介手数料とは 貸主と借主の契約の仲立ちを行う不動産会社に支払う報酬です。宅地建物取引業法等(法第46条・建設省告示第1552号他)により取引態様ごとに受け取ることのできる報酬の上限額が定められています。
取引態様が「貸主」の場合は不要です。
「仲介」の場合、居住用の物件は月額賃料の0.55ヶ月分の範囲内とされています。なお、物件によって、月額賃料の1.1ヶ月分を上限とした範囲内で必要となる場合があります。
「代理」の場合、月額賃料の1.1ヶ月分の範囲内とされています。
※宅地または居住用以外の建物で権利金がある物件に関しては、権利金の額を売買代金の額とみなして算出される場合があります。
権利金を以下のように区分し、それぞれ定められた割合を乗じて得た金額の合計額が上限となります。
(賃貸借に係る消費税額を除外した額)200万円以下の金額 5.5% 200万円を超え400万円以下の金額 4.4% 400万円を超える金額 3.3%
物件によって金額が異なります。
お問い合わせの際は十分ご確認ください。 - 消費税について
当サイトの課税対象となる物件価格およびその他費用等は、税込み表示となっております(100円未満は切上げ)。
詳しくは、当社までお問い合わせください。
